Wohnüberbauung Sonnenbühlstrasse 9, 8181 Höri
Wir bauen mit unserem Partner Haus Flipp AG in der Gemeinde Höri 3 Eigentums-Wohnungen in einem alten Bauernhaus. Alle Wohnung werden in modernstem Standard und grosszügigen Grundrissen errichtet. Lärmwerte und Isolationswerte entsprechen den höchsten Standardwerten von heute.
In das bestehende Bauernhaus unter Heimatschutz, wurde drei grosszügige, individuelle Wohnungen mit sehr hohem Standard eingebaut und Ende 2024 fertiggestellt. Im selben Bauabschnitt verwirklichen wir ein zweites, ähnliches Projekt. Hier erwarten wir in Kürze die Baubewilligung seitens des Bauamtes Höri, das zurzeit (März 2024) noch hängig ist.
Interessenten können Projekt auf Anfrage gerne vorab besichtigen.
Baubeginn Höri 1: Ende März 2022, Fertigstellung Mitte 2024.
Unser Projekt Höri 1 wurde fertiggestellt und die Eigentumswohnung verkauft.
Baugebinn Höri 2: Frühling 2025
Standortplan
Projekt Höri 1
Nordfassade Dreifamilienhaus Höri 1

Ostfassade

Südfassade

Westfassade

Grundriss Dachgeschoss
Grundriss Obergeschoss

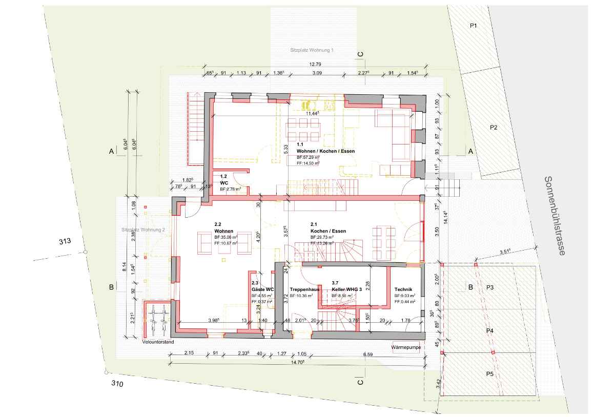
Grundriss Erdgeschoss
